Masure twice, design once: how accurate as-built interior design floor plans Vancouver ensure project success
In the competitive Greater Vancouver Area real estate landscape, professional as built interior design floor plans Vancouver are the essential foundation for design accuracy, regulatory compliance and project success.
AS BUILT DOCUMENTATION
Emil Jordan
11/11/202515 min read


Measure twice, design once: how accurate as-built interior design floor plans Vancouver ensure project success
Introduction
In the competitive and highly regulated real estate landscape of the Greater Vancouver Area (GVA), starting a project with inaccurate data is a recipe for costly setbacks and delays. For interior designers, precision is non-negotiable. Your creative vision must align perfectly with existing physical conditions, and this alignment relies on one crucial factor: professional as-built documentation. Investing in precise, verified interior design floor plans Vancouver is not just a best practice; it is the foundational strategic investment to safeguard your project's integrity. It mitigates risk, ensures full adherence to standards like the BC Building Code, and empowers you to execute stunning visions seamlessly. These detailed records capture the structure exactly as it stands today, making them essential for efficiency and design confidence across residential and commercial projects.
Understanding the indispensable value of as-built drawings in the Greater Vancouver Area
As-built drawings are not merely an administrative task; they are the definitive statement of a structure's reality. Unlike the original blueprints, which show the intent, as-builts detail the actual execution, including every modification made during construction.
Defining as-built documentation: reality vs. intention
An as-built drawing is a definitive record created by a contractor (or professional surveyor) when a project is finished. It documents the reality of the built environment. Because problems inevitably arise during construction---necessitating changes due to material availability, constructability concerns, or value engineering---the as-built document reflects all these alterations, big and small, compared to the initial intent.
As-built documentation details precisely how the final construction was executed. This documentation can be kept for later reference to show how things changed during the construction process.
What an as-built drawing typically documents:
Actual layout: the precise placement of elements like walls, doors, and windows.
Sizes and dimensions: verified measurements and distances between elements.
Materials used: a list of materials used, such as wood, steel, or concrete.
Utilities: the locations of critical systems, including pipes, wires, HVAC, and gas lines.
Changes and adjustments: any changes made during construction are recorded, often using revision clouds or delta symbols (Δ).
This documentation serves as a critical detailed record for contractors, subcontractors, and, most importantly, for building owners who require exact details for future repairs or maintenance.
Why precision is paramount in the Vancouver market
In a high-value property market like Vancouver, precision is not optional---it is essential. Starting a project with an inaccurate understanding of the existing structure is the quickest route to budget overruns and schedule slippage. Even minor errors can cascade into costly delays.
Accurate as-built documentation provides the reliable baseline needed to effectively mitigate these financial and construction risks.
Key benefits in the GVA:
Reduced rework and change orders: by clearly defining the space upfront, designers and contractors can avoid unnecessary revisions and costly change orders. Every inaccurate measurement can snowball into wasted materials and critical schedule delays.
Avoidance of costly clashes: detailed architectural drawings help project teams avoid clashes with existing structural and architectural elements, preventing expensive surprises during implementation. This is crucial for seamless integration of new layouts and systems.
Reliable contractor estimates: verified measurements derived from as-builts are essential for preparing reliable contractor estimates, ensuring that bids accurately reflect the scope of work and existing conditions, reducing the risk of mid-project cost inflation.
For property owners, these final drawings are like a snapshot of the finished project, providing the exact details needed if they ever wish to change or fix something in the future, such as locating a specific valve for repairs.
The critical distinction: contractor markups vs. professional record drawings
In the field, it is common to encounter various terms used interchangeably, but professionals must understand the critical distinction between contractor markups and professional record drawings. This distinction directly impacts project accuracy, compliance, and legal defensibility.
Understanding the difference
Contractor markups (red-line drawings): these are informal notes or sketches added to the original plans by the contractor during construction, often in red ink, showing on-site changes. While useful internally, markups are typically unverified, lack precise measurement, and should not be relied upon for legal or regulatory purposes. A contractor might roughly note that a wall moved 10 inches, but this lacks the necessary precision and context for professional design or compliance reporting.
Professional record drawings (as-builts): these are the final, verified, and dimensionally accurate documents compiled by design professionals or qualified surveyors, based on detailed site measurements. They go through a rigorous quality assurance (QA) process to ensure every measurement and system location is accurate and documented according to industry standards. For professional measurement services in Vancouver, the focus is always on delivering these reliable, finalized documents.
Risks of relying on unverified markups
Relying on unverified markups instead of professional record drawings can lead to severe consequences, including design errors, budget overruns, and liability exposure due to inaccurate data.
Beyond blueprints: leveraging technology for millimetre-level accuracy
Modern design projects demand a level of precision that traditional measuring tools cannot provide. This demand has spurred a technological revolution, moving far beyond the limitations of manual measuring tape. For interior designers, this is where advanced technology provides the answer.


The revolution of 3D laser scanning services
For complex commercial properties, large residences, or detailed home renovation Greater Vancouver projects, manual measurement carries significant risks of human error and is excessively time-consuming. Today, 3D laser scanning services and LiDAR (Light Detection and Ranging) technology are the industry standard for collecting reliable, precise data.
LiDAR scanning: this technology captures detailed, high-resolution 3D data of existing structures, collecting potentially millions of data points per second. This depth of detail ensures unmatched accuracy, significantly minimizing errors and saving time on site, thus providing a reliable and verified foundation for any project. Laser scanners can capture spatial data with up to ±2 mm accuracy.
Comprehensive coverage: 3D scanning ensures precision tools capture measurements correctly the first time, documenting even hard-to-reach spaces rapidly and thoroughly.
Choosing an as-built survey company in the GVA that leverages this advanced technology is vital for safeguarding a project's integrity, ensuring that every measurement is verified and legally defensible.
Deliverables for modern design workflows (BIM and point cloud data)
The raw data captured by 3D laser scanners is incredibly versatile and can be converted into advanced digital models, providing essential digital assets for modern design and construction documentation.
Point cloud data: this raw, high-resolution data set provides a rich source of detail---a digital 3D representation of the physical space---that can be used directly by specialized design software (like Revit or AutoCAD) for conversion into the required models. Converting point cloud data to a Building Information Model (BIM) is a critical service for redevelopment and refurbishment projects.
BIM (Building Information Models): a 3D BIM model (often in Revit or Archicad format) provides an interactive, updated three-dimensional representation of the built structure. This is considered the as-built BIM modeling service or LOD 500 stage in BIM workflows and incorporates precise spatial data, material specifications, and system integrations. BIM models are invaluable resources for facility managers and future design teams. BIM technology facilitates an integrated approach, enhancing collaboration and continuous updates among stakeholders.
Virtual tours: services may also include Matterport virtual tours or 360° panoramic photographs, which offer stakeholders an easily navigable view of the project site, documenting site changes and tracking progress remotely.
These digital outputs enhance the workflow of interior designers, improve collaboration with architects and contractors, and ensure that all design concepts align perfectly with the existing spatial limitations.


As-built documentation as essential interior designer tools
For interior designers, particularly those working in the compact, unique, or historic spaces common across Vancouver, as-built documentation is the foundational resource that allows creativity to flourish without the anxiety of structural conflict. As-built drawings are fundamental interior designer tools.
Eliminating guesswork for seamless space planning
Interior design success hinges on understanding every detail that is already present. Comprehensive as-built drawings provide the precise measurements of the current space, including walls, doors, windows, and fixed installations.
Confidence in design: this level of detail ensures designers avoid errors caused by incorrect assumptions and allows them to design with confidence, knowing their plans will align seamlessly with the actual structure.
Precise space planning: renovations often require repositioning walls, cabinetry, or fixtures. Accurate as-built measurements ensure that proposed layouts, custom millwork, and furniture fit perfectly within the existing structure.
Streamlined workflow: with all critical information, including floor plans and elevations, clearly documented, designers reduce the time spent revisiting the site for additional measurements or clarifications, accelerating the design cycle dramatically.
As one interior designer noted, having accurate as-built drawings is critical to their work, providing reliability and quick turnaround times. Interior designers act as visionaries, taking a 2D drawing and projecting it into the third dimension, which allows them to find problems that may arise during construction while still in the planning process, thus avoiding potential pitfalls missed by others.
Coordination of complex systems (MEP and RCPs)
Modern renovations require intricate coordination between aesthetic finishes and the hidden mechanical and electrical systems. The design must account for the reality of these existing components to ensure functionality and safety.
Electrical and lighting coordination: as-built drawings show the exact placement and routing of electrical panels, outlets, switches, light fixtures, and conduits. The Reflected Ceiling Plan (RCP) is especially vital, documenting the locations of existing lighting, sprinkler systems, and ventilation. Designers rely on this detail to plan new lighting schemes and avoid conflicts with HVAC ductwork.
Plumbing and HVAC integration: precise documentation of plumbing fixtures, piping, drainage, and HVAC components (ductwork, vents, equipment locations) ensures that new cabinetry and finishes do not obstruct critical systems.
Seamless collaboration: as-built drawings act as a common reference point---a universal language---ensuring that all parties, including designers, contractors, and engineers, are working from the same verified site conditions.
Enhancing client confidence and design integrity
The precision provided by as-builts translates directly into client satisfaction and project integrity. When designers present concepts supported by verified spatial data, clients gain instant trust.
Visualizing changes: with accurate floor plans and elevations, designers can create realistic renderings and detailed design specifications that help clients visualize the final outcome before construction begins.
Minimizing mistakes: interior designers focus heavily on details like material selection, cabinet layouts, flooring, and decorative lighting. Having field-verified dimensions ensures that the chosen materials, finishes, and furniture will integrate seamlessly, avoiding mistakes like oversized items or misaligned custom millwork.
Reputation and credibility: delivering flawless designs that align perfectly with the existing structure not only satisfies clients but significantly elevates a designer's reputation for professionalism and attention to detail.
Compliance and risk management: navigating the BC Building Code
In the GVA, adherence to the BC Building Code and local municipal bylaws is not just a best practice---it is mandatory for construction and renovation. Accurate as-built surveys are an essential tool for compliance, expediting approvals, and minimizing liability. Selecting a professional firm ensures your project adheres to all legal requirements.
Ensuring regulatory adherence and expediting building permit drawings
Accurate documentation of existing conditions is a cornerstone for meeting city requirements and ensuring seamless approval for any renovation project. Designers rely on precise as-builts to ensure their subsequent plans meet city codes and standards before submission.
Permit requirements: building permit drawings often require accurate representations of the existing structure and critical systems (like fire safety) to ensure the proposed renovations adhere to current safety and zoning regulations. Poorly documented or inaccurate as-builts can lead to failed inspections, project delays, or rejection of permit applications.
Code verification: comprehensive as-builts include necessary details for compliance checks, such as exterior facade measurements for zoning, window and door placements for calculating unprotected openings, and Reflected Ceiling Plans for fire safety compliance.
Mandatory documentation: as-built drawings are often contractually binding documents necessary for obtaining critical certifications, such as occupancy permits, or for closing permits after construction.
By prioritizing compliance through professional documentation, designers and contractors safeguard their projects from legal or financial setbacks and enhance the quality and safety of their designs.
Mitigating risk for home renovation Greater Vancouver projects
Starting a home renovation Greater Vancouver project, especially on older or heritage buildings (like those from the 1930s or 1940s common in areas like Kitsilano), carries inherent risks related to unforeseen site conditions, such as hidden structural issues, utility conflicts, or hazardous materials like asbestos.
Unforeseen conditions: accurate as-built documentation, particularly when derived from comprehensive 3D laser scanning services, reduces the chance of expensive, unforeseen issues like discovering hidden structural impediments or mislocated utility lines. For instance, not knowing the exact location of underground utilities or structural beams can derail a project or lead to significant cost increases when encountered during excavation or demolition.
Safety and hazmat: as-builts can indicate the location of hazardous materials (like asbestos, prevalent in pre-1980 Vancouver homes) and critical safety elements. This is paramount for the safety of tradespeople and ensuring responsible deconstruction practices.
Historical documentation: for heritage projects, where modifications are tightly regulated, accurate as-built surveys document existing conditions precisely, helping designers propose compliant renovations without damaging original structures.
Accuracy's impact on contractor estimates and budgets
The financial clarity provided by accurate as-builts is invaluable for everyone involved, particularly for ensuring reliable financial projections.
Accurate contractor estimates are founded on reliable as-built data. If a contractor relies on outdated plans or manual measurements, they often introduce significant contingency padding to cover potential unknowns.
The precision of verified as-builts allows contractors to:
1. Plan logistics accurately: detailed plans ensure every project starts on the right footing, allowing for precise material procurement and logistical planning.
2. Assess scope reliably: contractors can accurately assess the scope of work, including structural or mechanical changes, leading to tighter, more reliable bids.
3. Minimize financial risk: by eliminating measurement discrepancies and unforeseen clashes (e.g., between MEP and structure), the risk of budget overruns and material waste is significantly reduced.
The decision to invest in precise as-built documentation is a strategic financial move that minimizes risk and provides financial clarity for all stakeholders.
Comprehensive as-built deliverables for interior design success
When hiring a professional as-built firm, it is essential to understand exactly what deliverables you should expect. A professional firm provides a robust package of complete, accurate, and clearly formatted documentation tailored to support the entire design and renovation planning workflow, extending far beyond simple measurements.
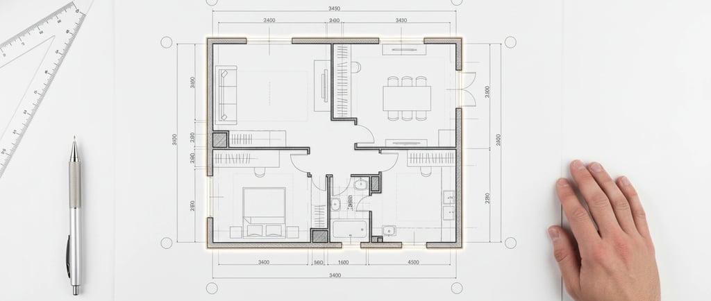
Detailed accurate floor plans: the core foundation
Accurate floor plans are the most critical and frequently requested component of the as-built package. These revised horizontal layouts show the finished arrangement of spaces and are indispensable interior designer tools.
Key details included in high-quality plans:
Exact dimensions: precise room sizes, ceiling heights, and changes in elevation (like sill heights and bulkhead dimensions).
Structural elements: verified locations, dimensions, and orientations of walls, columns, beams, and door/window locations, including door swing directions.
Fixtures and features: placement of permanent fixtures, such as plumbing elements (sinks, toilets, bathtubs), kitchen appliances, built-in cabinets, and, where applicable, HVAC equipment and electrical components.
Materials and finishes: indication of floor materials (e.g., wood, tile) and notes on wall/ceiling finishes.
Utility and service details: location of key utilities, including gas lines, water supply, drainage, and electrical panels.
This level of detail ensures that designers can confidently build or renovate while minimizing errors and meeting regulatory compliance requirements.


Critical vertical and overhead documentation (elevations and RCPs)
Comprehensive documentation must capture the vertical structure and overhead elements essential for integrated design and system coordination.
As-built elevations: these vertical drawings show the final appearance of exterior faces or interior walls. They depict accurate building facade details, including walls, doors, windows, and critical vertical measurements like sill/lintel heights. Interior elevations detail permanent fixtures and finishes.
Reflected ceiling plans (RCPs): RCPs are vital for integrating lighting layouts. They show the updated layout of ceiling-mounted elements, including:
Lighting fixtures (recessed lights, pendants, chandeliers) and switch locations.
HVAC components (air vents, grilles, diffusers).
Fire safety equipment (sprinklers, smoke detectors).
Ceiling features (bulkheads, dropped ceilings, materials, and heights).
Integrating utilities: MEP and fire safety systems
For complex renovations, knowing the precise location of existing Mechanical, Electrical, and Plumbing (MEP) systems is crucial. As-builts detail these systems to ensure safety, functionality, and compliance, particularly in commercial or multi-family residential structures.
MEP systems: documentation includes the layout and location of HVAC ductwork, air handling units, electrical panels, wiring routes, and plumbing fixtures/piping.
Fire safety: crucial elements like fire alarms, extinguishers, emergency exits, and sprinkler head locations are documented.
This incorporation of critical systems allows interior designers to account for these elements in their plans, ensuring compliance with standards and enabling confident custom design.
The long-term strategic value for property stakeholders
The utility of precise construction documentation extends far beyond the construction or design phase; it is a long-term asset that maximizes property viability and value for all stakeholders, from property owners to real estate floor plans providers.
Future-proofing for renovation planning and maintenance
As-built documentation is crucial for facility management programs, serving as the essential reference point for maintenance, upgrades, and space utilization planning. Buildings, much like living organisms, change over time through renovations and adjustments, meaning as-built records should ideally be dynamic and accessible.
Informed maintenance: the detailed record of critical systems (electrical panels, HVAC, plumbing) allows facility managers to make informed maintenance decisions, saving time and resources in the long term. For instance, knowing the exact location of pipes or wires is essential for repairs or system upgrades.
Simplified renovations: when the time comes for future additions or alterations, accurate as-builts provide a clear understanding of the existing structure, simplifying renovation planning and preventing costly surprise issues. This documentation reduces guesswork and provides an honest, realistic depiction of the structure for future architects and engineers.
Maximizing property value with professional real estate floor plans
In the competitive GVA real estate market, professional documentation adds tangible value and credibility to any property listing.
Enhanced listings: accurate real estate floor plans showcase properties with professional-grade 2D and 3D layouts, helping potential buyers visualize the space and making listings more engaging and appealing.
Leasing and management: for commercial properties, building owners and managers require highly detailed drawings for asset and facility management. Specialized services, such as BOMA-standard-compliant measurements, ensure accurate accounting of leasable areas, which is critical for property management and leasing.
Informed transactions: as-built drawings enable building managers to predict maintenance needs and budgets, leading to more informed purchasing and selling decisions, reassuring potential buyers of the real estate's quality and value.
Importance of high-quality construction documentation
High-quality, organized as-built documentation enhances how the market perceives a company and helps the business grow in the long run. Messy or incomplete drawings reflect poorly on contractors and can impede future business opportunities.
Top-tier construction documentation ensures:
1. Transparency: providing owners with a comprehensive snapshot of the finished project.
2. Legal protection: serving as critical documentation for project closeout, settling contractual obligations, or handling insurance or legal issues related to the building.
3. Efficiency: facilitating easier long-term facility management and future project readiness.
Choosing the right as-built partner in Vancouver
Choosing the right as-built partner in Vancouver can make the difference between a seamless, well-executed project and one plagued by costly revisions. Selecting an experienced and professional firm is crucial to ensure that your project starts with the required reliability and accuracy. A reliable partner offers not only technical accuracy but also proven experience and a commitment to local standards.
Criteria for selecting a professional survey company
Interior designers, architects, and contractors should look for providers who specialize in precision and adhere to the rigorous standards required in British Columbia.
Key factors to evaluate:
Local experience and compliance: choose a firm with proven experience in the GVA, demonstrating familiarity with Vancouver Building Bylaws, permit submission requirements, and the BC Building Code.
Technology utilization: prioritize companies that utilize advanced measurement tools, specifically 3D laser scanning services and LiDAR, to achieve millimeter-level accuracy and eliminate human error.
Expertise and quality standards: the quality of the final documentation hinges on the skills of the surveying professionals and BIM modelers. Look for firms that offer BOMA compliance expertise for area calculations.
Tailored deliverables: the provider should deliver files in scalable, useable formats tailored to the professional's needs (e.g., editable DWG, precise PDFs, and BIM/Revit models).
Speed and communication: in construction, time is money. A professional partner should offer a fast turnaround time (sometimes as quickly as 48 hours for certain packages) and responsive communication.
By partnering with a firm dedicated to efficiency, accuracy, and customer experience, you establish a solid foundation, ensuring your project is ready for successful implementation.
Best practices for high-quality as-builts
To ensure reliable construction documentation that will enhance contractor estimates and streamline the design phase, project teams should adhere to structured workflows and best practices.
5 fundamental strategies for improving as-built quality:
1. Continuous updating: avoid waiting until the very end of construction to record changes. Continuously updating drawings throughout the project life cycle---for example, updating changes weekly or monthly---improves accuracy and makes the final process more efficient.
2. Use of precision technology: rely exclusively on precision tools like laser scanning instead of manual tape measures, which are susceptible to error and lead to costly setbacks.
3. Comprehensive data capture: ensure documentation captures all critical system locations (MEP, fire safety) and architectural features. Failing to verify utilities can lead to on-site surprises that derail construction.
4. Rigorous quality assurance (QA/QC): all deliverables must go through a non-negotiable quality control step where all dimensions, annotations, and layer standards are verified to ensure files are accurate, complete, and ready for immediate design use.
5. Digital accessibility: use cloud-based digital tools to ensure all stakeholders---designers, contractors, and facility management teams---have immediate access to the most up-to-date drawings and information online.
By integrating digital tools and continuously updating drawings, professional teams ensure clarity, accuracy, and efficiency across the entire project lifecycle, minimizing the pitfalls that commonly inflate contractor estimates.
Conclusion: building confidence with precise interior design floor plans Vancouver
The message is clear: professional as-built drawings are not a mere formality but the foundational strategic investment for any design or construction project in the Greater Vancouver Area. For interior designers, these verified accurate floor plans are critical interior designer tools that ensure every decision is based on precise, verified data.
By utilizing advanced 3D laser scanning services to obtain precise construction documentation, professionals gain the clarity necessary to navigate complex processes, from streamlined renovation planning to submitting compliant building permit drawings.
Accurate as-built documentation secures project success by:
Minimizing financial risk: preventing field conditions from triggering expensive change orders, ensuring reliable contractor estimates, and protecting budgets.
Ensuring compliance: meeting local municipal standards and BC Building Code requirements to facilitate faster permit approvals and project closeout.
Empowering design excellence: providing designers with verified data that eliminates guesswork, streamlines workflows, and ensures every furniture, fixture, and custom element fits perfectly.
Maximizing asset value: creating comprehensive records that support long-term facility management and enhance property listings with accurate real estate floor plans.
When details matter, starting your project on a solid foundation of precise, verified data is the smartest first step. Leveraging technology ensures that your interior design floor plans Vancouver reflect reality, giving you the clarity and confidence to build for a lifetime. This dedication to precision transforms the initial design phase from a gamble into a guaranteed outcome.
MeasureBuilt
Address
413-8188 Manitoba Street
Vancouver, BC V5X 4L8
Contacts
236-232-3335
emil@measurebuilt.com
When Details Matter!
