How to Choose the Right As-Built Survey Company in Vancouver: An Expert Guide to Precision and Compliance
Looking for a trusted as-built survey company in Vancouver? Discover how to choose the right partner for precise floor plans, 3D laser scanning, BIM models, and BC Building Code compliance.
AS BUILT DRAWINGS
Emil Jordan
10/27/202516 min read


In Vancouver's dynamic construction and real estate industry, precision and compliance are non-negotiable. Whether you're planning a large commercial development or a detailed home renovation, the success of your project relies on one crucial factor - accurate and verified as-built documentation. These detailed records form the blueprint of your existing structure, guiding architects, engineers, and contractors to make informed decisions, prevent costly mistakes, and ensure every design aligns perfectly with on-site conditions.
Choosing the right as built survey company Greater Vancouver Area (GVA) is therefore a vital step in safeguarding your project's integrity. A reliable firm not only delivers laser-measured floor plans and 3D models with millimeter accuracy but also ensures full adherence to the BC Building Code and local municipal standards. By investing in professional surveying expertise from the outset, you gain the confidence, compliance, and precision needed to streamline approvals, optimize costs, and build on a foundation of verified data.
Understanding As-Built Surveys and Their Role in Construction
As-built surveys play a critical role in construction, renovation, and property management by providing an accurate record of a building as it actually exists. Unlike original design drawings, which reflect the architect's or engineer's intent, as-built surveys document the reality of the built environment, including any modifications, deviations, or field adjustments made during construction.
What Are As-Built Drawings?
As-built drawings - also referred to as as-built plans or record drawings - are technical representations that capture the final conditions of a structure. They include floor plans, elevations, sections, and details of mechanical, electrical, and plumbing (MEP) systems. These drawings are essential for ensuring that all future work, whether renovations or maintenance, is based on the most accurate and reliable information.
For example, an interior designer planning a remodel relies on precise as-built measurements to ensure furniture layouts, wall placements, and finishes fit perfectly. Similarly, contractors and engineers need as-built documentation to avoid costly conflicts between MEP systems and structural elements during retrofits or additions.
Why As-Built Surveys Are Essential
1. Renovations and Retrofits: As-built surveys help design and construction teams understand the exact dimensions and layout of existing structures, avoiding mistakes that could lead to delays or additional costs.
2. Asset Management: Facility managers use as-built documentation for long-term building maintenance, space optimization, and lifecycle planning. Accurate drawings simplify repairs, replacements, and expansions.
3. Regulatory Compliance: Local authorities often require precise as-built surveys to issue occupancy permits or approve renovations. In Vancouver, adherence to municipal codes and BOMA standards is particularly critical, as non-compliance can result in fines or project delays.
4. Conflict Detection: Accurate as-built data allows for early identification of clashes between structural, electrical, and plumbing systems, preventing rework and ensuring project safety.
5. Historical Reference: As-built records serve as a permanent reference for a property's evolution over time, which is invaluable for insurance claims, future renovations, or property sales.
By relying on professional as-built survey companies in Vancouver, project teams gain confidence that every measurement, every elevation, and every utility placement is verified, documented, and legally defensible. In a city like Vancouver, where precision and compliance are non-negotiable, as-built surveys form the foundation of successful, efficient, and safe construction projects.
The Difference Between Markups and Professional Record Drawings
In the construction and real estate industry, it's common to encounter various types of documentation claiming to represent the building as it exists. Two of the most frequently confused terms are contractor markups and professional record drawings. Understanding the distinction between the two is critical when choosing an as-built survey company in Greater Vancouver Area, as it directly affects project accuracy, compliance, and legal defensibility.
What Are Contractor Markups?
Contractor markups are informal notes or sketches added to the original design drawings by contractors during construction. They often highlight changes, field adjustments, or discrepancies encountered on-site. While useful as a quick reference for internal teams, markups are typically not verified, lack measurement precision, and cannot be relied upon for legal or regulatory purposes.
For example, a contractor may draw a rough note indicating that a wall was moved 10 inches to accommodate duct-work. While this provides a hint of the change, it doesn't include precise measurements, elevations, or impact on other systems - making it insufficient for future renovations or compliance reporting.
What Are Professional Record Drawings?
Professional record drawings are verified, precise, and legally defensible representations of a completed building. Prepared by qualified surveyors or as-built professionals, these drawings include:
Accurate floor plans and elevations
Detailed MEP layouts and utility locations
Verified dimensions and tolerances
Notes on deviations from original designs
Unlike informal markups, record drawings go through a quality assurance process, ensuring that every measurement is accurate and every system is documented according to standards such as BOMA or municipal building codes.
Risks of Relying on Unverified Markups
Using markups instead of professional record drawings can lead to costly consequences:
Design errors: Renovation plans may clash with existing walls, ceilings, or systems.
Budget overruns: Unforeseen conflicts often result in additional labor and material costs.
Compliance issues: Municipal authorities may reject permit applications due to incomplete or inaccurate documentation.
Liability exposure: Inaccurate drawings can create legal risks if errors cause damage or safety issues.
Mini-Checklist: What to Expect in a Professional Record Drawing
✓ Verified floor plans with precise dimensions
✓ Detailed elevations and cross-sections
✓ MEP system layout and utility verification
✓ Compliance with building codes and industry standards
✓ Clear, professionally formatted documentation in DWG, PDF, or BIM formats
By choosing a professional as-built survey company in Greater Vancouver Area, you ensure that your project is built on accurate, reliable, and legally defensible data. This distinction not only protects your investment but also provides a strong foundation for design, construction, and future property management.
Why Accuracy is Critical in Vancouver's Construction and Real Estate Market
In Vancouver's fast-paced and highly regulated construction and real estate market, accuracy in as-built surveys is not optional - it's essential. Even minor measurement errors can cascade into costly delays, design conflicts, or compliance issues. Choosing the right as-built survey company in Vancouver ensures that every detail of your project is precisely captured and documented.
Consequences of Inaccurate Measurements
Inaccurate as-built documentation can lead to:
Budget overruns: Rework and material waste due to incorrect dimensions can inflate project costs.
Design errors: Furniture layouts, finishes, or structural modifications may fail to fit, impacting aesthetics and functionality.
Construction delays: Unforeseen clashes between building systems, such as MEP and structural components, can halt progress.
Compliance risks: Errors in documentation may cause municipal authorities to reject permit applications or delay occupancy approvals.
Key Benefits of Accuracy
Reliable as-built surveys provide tangible advantages for all stakeholders:
Reduced rework and change orders: Accurate measurements allow contractors and designers to plan precisely, minimizing costly on-site adjustments.
Clash detection between MEP and structure: Detailed documentation identifies potential conflicts early, preventing delays and safety issues.
Reliable contractor estimates: Verified measurements enable precise cost estimation, reducing surprises during construction.
Long-term maintenance and facility management: Facility managers rely on accurate drawings for repairs, renovations, and asset tracking over the building's lifecycle.
Why Interior Designers Rely on As-Built Drawings for Renovations
For interior designers, accurate as-built drawings are the backbone of every successful renovation project. Here's why:
1. Precise Space Planning: Renovations often involve repositioning walls, cabinetry, or fixtures. Accurate as-built measurements ensure that proposed layouts fit perfectly within the existing structure.
2. Furniture and Fixture Selection: Designers need verified dimensions to choose furniture, appliances, and finishes that integrate seamlessly with the space.
3. Lighting and MEP Coordination: As-built drawings show the exact placement of electrical outlets, lighting, HVAC ducts, and plumbing, allowing designers to plan lighting schemes, appliance locations, and custom mill work without conflicts.
4. Visualizing Design Changes: With accurate floor plans and elevations, designers can create realistic renderings and mood boards, helping clients visualize the renovation before construction begins.
5. Efficient Renovation Workflow: Verified documentation reduces guesswork, minimizes site visits, and prevents costly errors during demolition or installation.
In Vancouver's renovation market, where spaces are often compact, historic, or uniquely customized, every millimeter counts. By working with a professional, technology-driven as-built survey company, interior designers gain the confidence that their designs will fit perfectly, meet client expectations, and comply with municipal regulations.
Compliance Considerations: Meeting BC Building Code and Municipal Standards
In Vancouver, the construction and renovation landscape is highly regulated, with strict requirements defined by the BC Building Code and municipal bylaws. Accurate as-built surveys are not just a best practice - they are essential for compliance. Selecting a professional as-built survey company in Vancouver ensures that your project adheres to all legal requirements, avoids costly delays, and maintains safety standards.
Why Compliance Matters
Non-compliance can lead to serious consequences:
Permit delays or rejections: Municipal authorities may refuse renovation or occupancy permits without verified documentation.
Legal liability: Inaccurate or incomplete records can result in fines, work stoppages, or disputes with contractors, clients, or regulatory bodies.
Safety risks: Incorrect documentation of structural elements, MEP systems, or fire safety features can compromise building safety.
For interior designers and architects, compliance considerations go beyond legality - they directly affect design feasibility and project success.
Key Compliance Benefits for Interior Designers and Architects
1. Efficient Design Approvals: Verified as-built drawings provide accurate representations of the existing structure, ensuring design proposals comply with Vancouver Building Bylaws and zoning regulations. This reduces back-and-forth with permit offices and speeds up approvals.
2. Integration with Building Systems: Interior designers and architects rely on precise documentation of mechanical, electrical, and plumbing systems to avoid conflicts with new layouts, lighting, or fixtures.
3. Fire Safety and Accessibility Compliance: Renovation designs must meet safety standards, including fire exits, sprinkler systems, and accessibility requirements under the BC Building Code. As-built drawings ensure these elements are correctly incorporated into design plans.
4. Historical and Heritage Projects: Greater Vancouver has many heritage buildings where modifications are tightly regulated. Accurate as-built surveys document existing conditions, helping designers propose compliant renovations without damaging original structures.
5. Collaboration Across Teams: Architects and interior designers often work alongside engineers, contractors, and surveyors. Professional record drawings create a single source of truth, ensuring all stakeholders are aligned with regulatory requirements.
Practical Steps for Ensuring Compliance
Use a certified as-built survey company familiar with BC Building Code and Vancouver bylaws.
Verify that all drawings include MEP systems, fire safety elements, and accessibility features.
Maintain updated documentation throughout the construction or renovation process.
Coordinate with municipal authorities early to confirm permit requirements and compliance standards.
By prioritizing compliance, interior designers and architects not only safeguard their projects from legal or financial setbacks but also enhance the quality and safety of their designs. Accurate as-built surveys enable creative solutions that are both beautiful and fully compliant, giving clients peace of mind and project teams a clear road map to success.


Technology Standards: 3D Laser Scanning Services
Modern construction and renovation projects demand a level of precision that traditional measuring tools can no longer provide. That's where LiDAR scanning services come in. These technologies have revolutionized how as-built surveys are conducted, offering unparalleled accuracy, speed, and reliability. When selecting an as-built survey company in Greater Vancouver Area, choosing one that leverages advanced laser scanning and point cloud technology ensures that your project starts on a foundation of complete precision.
What Is LiDAR and How It Works
LiDAR (Light Detection and Ranging) is a remote sensing technology that uses laser light to measure distances and capture millions of data points per second. The result is a highly detailed "point cloud"-a digital 3D representation of the physical space that records walls, ceilings, structures, and even small architectural details with millimeter-level accuracy.
This point cloud data is then processed into CAD or BIM (Building Information Modeling) formats, creating accurate floor plans, elevations, sections, and 3D models that reflect the true existing conditions of a building.
Benefits of 3D Laser Scanning for Accuracy
Exceptional precision: Laser scanners capture spatial data with up to ±2 mm accuracy, eliminating human measurement errors.
Comprehensive coverage: Every surface, corner, and angle is documented-even in hard-to-reach areas.
Faster turnaround: Scanning large or complex sites can take hours instead of days, reducing downtime.
Digital data integration: Point clouds can be directly imported into CAD or Revit, streamlining design and coordination workflows.
Future-proof documentation: Digital as-built data can be easily updated and reused for future renovations or maintenance.
How Technology Benefits Interior Designers, Architects, and Contractors
For Interior Designers:
Laser scanning provides exact measurements of existing rooms, walls, ceilings, and fixtures, enabling designers to develop precise layouts, cabinetry, and lighting plans. It eliminates guesswork and ensures that every design element fits perfectly into the real space.
For Architects:
Point cloud to BIM workflows help architects visualize how proposed additions or modifications will interact with existing structures. This improves clash detection, code compliance, and coordination with engineering teams, ultimately saving time and money.
For Contractors:
Accurate 3D data ensures that fabrication, installations, and site work proceed smoothly, with fewer surprises during construction. Contractors can also use scanned data to verify completed work or document progress for clients and inspectors.


Point Cloud to BIM Integration
A professional as-built survey company can deliver data in multiple formats, from 2D CAD drawings (DWG, PDF) to fully developed BIM models. Integrating point cloud data into BIM platforms allows project teams to simulate real-world conditions, plan renovations efficiently, and coordinate trades with confidence.
In Vancouver's competitive building environment, where space optimization and regulatory precision are key, adopting 3D laser scanning technology sets high-performing professionals apart. Whether you're an architect designing a mixed-use development, an interior designer planning a renovation, or a contractor managing multiple trades, advanced scanning services deliver the accuracy and efficiency that modern projects demand.
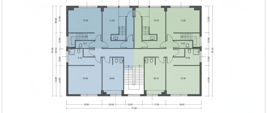
Key Deliverables to Expect from a Professional As-Built Survey Company
When hiring an as-built survey company in Greater Vancouver Area, it's essential to understand exactly what deliverables you should expect. A professional firm doesn't just provide rough sketches or floor plans - it delivers complete, accurate, and clearly formatted documentation that supports every stage of your project, from concept design to construction and facility management.
Standard Deliverables in a Professional As-Built Package
1. Accurate Floor Plans
Detailed layouts showing walls, partitions, doors, windows, and room dimensions. These are essential for space planning, renovations, and permit applications.
2. Elevations and Cross-Sections
Scaled exterior and interior elevations that display wall heights, openings, finishes, and façade details. Cross-sections reveal structural relationships and ceiling heights, helping architects and designers plan with precision.
3. Reflected Ceiling Plans (RCPs)
Ceiling-mounted elements such as lighting, HVAC diffusers, sprinklers, and beams are documented for proper coordination of lighting layouts and mechanical systems.
4. Site Plans
Show building footprint, property boundaries, access paths, setbacks, and landscaping features. These are crucial for permit submissions, site coordination, and zoning compliance.
5. MEP and Fire Safety Documentation
Locations of mechanical, electrical, and plumbing systems, along with fire exits, alarms, and sprinkler systems. These drawings help contractors and engineers avoid conflicts and ensure compliance with the BC Building Code.
File Formats and Digital Standards
Professional as-built survey companies deliver documentation in versatile formats such as:
DWG (AutoCAD / BricsCAD): For design teams that need editable files.
PDF: For clients, contractors, or permit submissions.
Revit / BIM Models: For architects and developers requiring 3D coordination and long-term building information management.
Some companies also provide cloud-based access or drawing management platforms for easy collaboration among designers, engineers, and contractors.
Sample Package Comparison
Basic Package
Included Deliverables: Floor plans, limited exterior elevations (PDF format)
Ideal For: Homeowners, small renovations
Standard Package
Included Deliverables: Floor plans, full elevations, sections, RCPs (DWG + PDF)
Ideal For: Interior designers, small to mid-size firms
Premium Package
Included Deliverables: Full building survey, MEP, fire safety plans, Revit/BIM model
Ideal For: Architects, contractors, large commercial projects
Why Deliverables Matter for Design and Construction Teams
For Interior Designers: Complete as-built sets enable precise space planning, fixture alignment, and coordination of finishes and lighting.
For Architects: Comprehensive data ensures that new designs integrate seamlessly with existing structures, reducing design revisions.
For Contractors: Clear documentation eliminates measurement discrepancies and streamlines coordination with subcontractors.
Whether you're renovating a heritage home in Kitsilano or designing a new commercial space in Downtown Vancouver, your project's success depends on the quality and completeness of your as-built deliverables. Partnering with a detail-oriented, technology-driven as-built survey company ensures every dimension, elevation, and system is accurately captured-setting the stage for a smooth, compliant, and cost-efficient build.
How to Choose the Right As-Built Survey Company in Vancouver
Choosing the right as-built survey company in Greater Vancouver Area can make the difference between a seamless, well-executed project and one plagued by costly revisions or compliance issues. A reliable partner should offer not only technical accuracy but also strong communication, proven experience, and a commitment to local standards. Whether you're an architect designing a mixed-use development, an interior designer managing a renovation, or a contractor coordinating trades, careful vetting ensures you're working with professionals who deliver precision and accountability.
What to Look for in a Professional As-Built Survey Company
Use the checklist below when evaluating potential companies:
✅ Proven Experience in Greater Vancouver Projects
Look for firms with a strong portfolio across residential, commercial, and institutional projects in the Greater Vancouver Area (GVA). Local experience means familiarity with Vancouver Building Bylaws, permit submission requirements, and regional construction standards.
✅ Use of Advanced LiDAR Scanning Technology
Technology is a key indicator of accuracy and efficiency. Companies using 3D laser scanners and LiDAR-based measurement systems produce precise data with minimal human error-ideal for complex interiors, irregular structures, or high-rise projects.
✅ Compliance with BOMA and BC Building Code Standards
Top-tier firms follow BOMA (Building Owners and Managers Association) standards for floor area calculations and ensure documentation aligns with the BC Building Code. This compliance helps architects and designers secure faster permit approvals and supports property managers with accurate leasing data.
✅ Fast Turnaround and Responsive Support
In Vancouver's fast-moving design and construction environment, timing matters. Choose a company known for efficient site measurement, clear communication, and prompt delivery of CAD or BIM files without compromising accuracy.
Recognized Local Expertise
Vancouver is home to several reputable firms specializing in as-built surveys and laser scanning. Companies like Measure Masters, UNIQ Dimensions, and Measure Built are recognized for their focus on technology, precision, and customer service. Partnering with such firms ensures your project benefits from both local expertise and advanced digital capabilities.
Why This Matters for Designers, Architects, and Contractors
Interior Designers: Gain confidence that room dimensions, ceiling heights, and MEP placements are precise-allowing flawless design integration.
Architects: Ensure accurate modeling, code compliance, and seamless coordination with engineers and city planning departments.
Contractors: Reduce site rework and material waste with verified documentation that matches actual field conditions.
By taking time to carefully choose the right as-built survey company in Vancouver, you're investing in project certainty, design accuracy, and compliance from day one. The right partner provides more than measurements-they deliver clarity, efficiency, and a foundation you can build on with confidence.
Tailoring Documentation to Different Professionals
Every professional involved in a construction or renovation project-whether an interior designer, architect, contractor, or property manager-relies on as-built documentation for different purposes. A skilled as-built survey company in Vancouver understands these unique needs and tailors deliverables accordingly. By customizing drawings, file formats, and levels of detail, they ensure each stakeholder can make confident, data-driven decisions throughout the project lifecycle.
For Interior Designers: Precision That Powers Creative Freedom
Interior designers depend on accurate as-built drawings as the foundation for their creative vision. Precision measurements allow them to design confidently within the existing structure-whether they're planning cabinetry, selecting finishes, or re configuring space layouts.
Key benefits for interior designers:
Accurate space planning: Verified dimensions help avoid conflicts when specifying furniture, lighting, and millwork.
Design visualization: Detailed elevations and RCPs support realistic renderings and client presentations.
Fewer site visits: Digital as-built drawings eliminate the need for repeated measurements and on-site verifications.
Smooth coordination: Designers can align their plans with contractors and engineers, ensuring every element fits perfectly during installation.
Partnering with Trusted Design Professionals
Successful renovation and construction projects depend on collaboration between reliable as-built specialists and talented design professionals. At Measure Built, we're proud to work with leading interior designers who share our commitment to accuracy, efficiency, and design excellence.
One of our valued customers is Jessica Bremner Design , a North Vancouver-based interior design studio known for its timeless, functional, and beautifully curated spaces. Jessica and her team focus on creating interiors that blend practicality with refined aesthetics-perfectly aligning with our precision-driven as-built process.
We provide as-built measurement services for Jessica Bremner Design's renovation projects, ensuring her team begins each design phase with reliable, up-to-date floor plans and elevations. This collaboration streamlines project timelines, reduces site errors, and allows her designers to make confident design decisions based on accurate data.
Together, we help homeowners, architects, and contractors bring their design visions to life-starting from a foundation of precise measurements and professional documentation.
For Architects: Reliable Data for Design and Compliance
For architects, as-built surveys are critical to understanding the true geometry and conditions of a building. Professional documentation provides an accurate starting point for design development, code analysis, and permit submissions.
Key benefits for architects:
BIM-ready deliverables: Integration with Revit or similar platforms for streamlined design workflows.
Clash detection: Identify and resolve potential conflicts between proposed and existing structures.
Regulatory compliance: Drawings formatted to meet Vancouver Building Bylaw and BC Building Code requirements.
Historic and adaptive reuse projects: Document existing structures with precision before proposing additions or restorations.
For Contractors: Building with Certainty and Efficiency
Contractors rely on accurate as-built drawings to execute designs efficiently and prevent on-site surprises. With verified dimensions and up-to-date documentation, they can coordinate trades, order materials, and maintain timelines with confidence.
Key benefits for contractors:
Reduced rework and material waste: Accurate layouts minimize costly adjustments during construction.
Improved coordination: Drawings showing verified MEP locations and structural elements reduce clashes between trades.
Progress tracking: As-built updates at project milestones help verify completion and maintain records for clients.
For Property Managers and Owners: Long-Term Value and Compliance
Property managers and building owners use as-built surveys as a vital reference for maintenance, leasing, and renovations. Professionally prepared, BOMA-compliant documentation helps them maintain accurate space records, plan upgrades, and stay compliant with municipal regulations.
Key benefits for property managers and owners:
BOMA area analysis: Supports leasing, asset valuation, and tenant management.
Facility maintenance planning: Simplifies scheduling of upgrades and repairs with precise utility and layout data.
Future project readiness: Reliable digital records make future renovations or expansions faster and more cost-effective.
By tailoring as-built documentation to the specific needs of each professional, a top-tier as-built survey company in Vancouver ensures that every stakeholder-designer, architect, contractor, or owner-has the clarity and confidence to make informed decisions. The result is a smoother workflow, fewer mistakes, and a more efficient path from concept to completion.


Value-Added Services That Enhance Project Success
Beyond traditional as-built drawings, many professional survey companies in Vancouver offer value-added services that elevate project outcomes, reduce risk, and support long-term building management. These additional offerings allow interior designers, architects, contractors, and property managers to leverage precise as-built data in innovative ways, making projects smoother, faster, and more compliant.
BOMA Floor Area Analysis
Professional as-built surveys often include BOMA (Building Owners and Managers Association) floor area calculations, which are critical for commercial leasing, property valuation, and tenant management. Accurate floor area data helps architects and designers plan layouts efficiently and ensures property managers can maintain compliant and precise leasing records.
Fire Safety and Evacuation Plans
For renovations, retrofits, or large-scale projects, fire safety and evacuation documentation is essential. Survey companies can document existing systems, exit routes, and sprinkler coverage, helping architects and contractors design compliant modifications and meet BC Building Code standards.
Virtual Tours and 360° Digital Visualization
Matterport and 360° scanning technology allow stakeholders to virtually explore spaces before any work begins. Interior designers can plan furniture layouts, lighting schemes, and custom installations, while contractors can assess site conditions remotely-reducing travel, improving collaboration, and preventing measurement errors.
Drawing Management and Digital Asset Services
Some survey firms provide cloud-based drawing management, allowing teams to access, update, and share as-built drawings in real time. This service is invaluable for ongoing renovations, multi-phase construction projects, or facility management, ensuring that every stakeholder is working from the latest, verified documentation.
Why These Services Matter
For Interior Designers: Virtual tours, BOMA analyses, and updated drawings allow precise design planning and client presentations with confidence.
For Architects: Fire safety documentation and BIM-ready point cloud integration streamline design approval processes and code compliance.
For Contractors: Access to digital assets and updated site information reduces on-site errors, rework, and delays.
For Property Managers: Cloud-based documentation ensures accurate maintenance records and simplifies future renovations or upgrades.
By offering these value-added services, a professional as-built survey company doesn't just provide measurements-it enhances project success, improves collaboration, and protects your investment. In Vancouver's competitive construction and renovation market, these extras can make a significant difference in efficiency, accuracy, and compliance.
Conclusion: Building Confidence Through Precision
Accurate and compliant as-built surveys form the foundation of every successful construction, renovation, or property management project in Greater Vancouver Area. From interior designers planning renovations, to architects developing complex designs, to contractors executing builds, reliable as-built documentation ensures that every decision is based on precise, verified data.
Working with a professional, technology-driven as-built survey company in Vancouver not only guarantees accuracy but also supports compliance with BC Building Code, municipal standards, and BOMA requirements. Advanced tools like LiDAR, 3D laser scanning, and point cloud to BIM integration further enhance precision, reduce errors, and streamline workflows across project teams.
By selecting the right partner, you gain more than measurements-you gain confidence, efficiency, and peace of mind. Accurate as-built surveys reduce rework, prevent costly mistakes, and enable smooth collaboration between designers, architects, contractors, and property managers.
Consult a professional as-built survey expert today to ensure your project starts with confidence, precision, and a foundation built for success. Your Vancouver project deserves nothing less than the accuracy and reliability that a top-tier as-built survey company can deliver.
Contact Us
MeasureBuilt
Address
413-8188 Manitoba Street
Vancouver, BC V5X 4L8
Contacts
236-232-3335
emil@measurebuilt.com
When Details Matter!
